焕新光谷生活,均好户型难得一见
扫描到手机,新闻随时看
扫一扫,用手机看文章
更加方便分享给朋友
伴随楼市紧张,越来越多的置业者为求房源而满城奔波。缺乏置业经验的置业者,在这种市场情况下,很容易忽略一个重要的问题,那就是“户型”。一旦考虑不周,遇上“奇葩户型”,原本勾勒的美好生活蓝图,便会问题重重。
今天,小编给大家盘点一下明显的“硬伤”户型。
1、刀柄户型
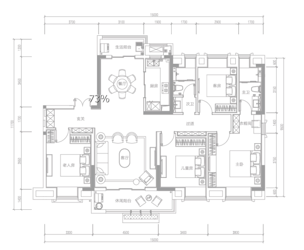
103㎡ 三室两厅一卫

该户型延伸出来的主卧犹如凸出来的“刀柄”,市场称“刀柄户型”。表面看,主卧带有3.3米阳台,保障了其私密性,但客厅、餐厅采光较弱,而进门处餐厅的位置,略显尴尬,要摆在2.1米的过道中,切忌不能买大餐桌。此外,卫生间门正对房屋大门,空气对流下,居者还能愉快吃饭?
2、扁担户型
130㎡三室两厅两卫

该户型过道太长,神似扁担,市场称其“扁担户型”。该户型主卧、次卧位居两头,明显北面的次卧采光略差,而客厅连接的阳台很宽敞,但面朝东面,此类设计更像投资形小公寓的设计,缺乏大三房的方正通透。
3、密闭户型
88㎡三室两厅一卫

该户型客厅缺乏阳台,仅带有一个北面飘窗,采光较弱,不通风。虽然主卧链接阳台确保了主卧的舒适度,但整个户型设计上,明显缺角。
4、手枪户型
100㎡三室两厅一卫

典型的手枪户型。整个户型像一个密封的盒子,通透性不佳,而从客厅到入口处长长的过道,浪费的都是面积。
“硬伤”户型多,置业者在选房时,一定要充分考虑户型的舒适度,这将直接关系到置业者入住后的生活舒适指数。那么,怎样的户型才能带给居者理想的生活呢?
排名前列、方正户型
方正户型,避免了不合理的长宽比例,从体验来说,舒适度更高。同时,方正户型没有狭长的走道,空间使用率更高;
第二、双向阳台
户型采光、通风越好,生活舒适指数越高。南北双向阳台户型,既带来了更舒适的生活体验,双阳台,可晾晒,可收纳,可做茶室、花房,功能多样;
第三、南向双卧
市面上的好户型,必定有南向双卧,或更多。卧室朝南,保证充分的采光与通风,直接关系居者的生活质量。
第四、主卧套间及干湿分区卫生间
户型的设计,一定以居者生活习惯为基础。主卧套间及干湿分区卫生间,较大限度的考虑了人类生活理想及生活习惯,舒适指数颇高。
然而,在招商·东城华府,一批具备高舒适度、高体验度的理想户型,震撼入市。
三室两厅两卫 建面约107㎡

100+入门级刚改户户型配备两卫,市场少有
客餐厅+阳台一体化设计,入门即见大气布局
南向阳台及南向双卧,确保了空间通透采光
五星级酒店级主卧套件,配备独立盥洗室与衣帽间,奢适显贵。
四室两厅两卫 建面约142㎡

全明四居室,功能完善、东线合理;
入口玄关,轻松收纳。餐客厅一体,容纳三代人同堂时光;
南北双向阳台,可摆放茶几、桌椅等,功能随心设计;
南向观景主卧,奢配盥洗间与衣帽间,尽享私密体验。
四室两厅两卫 建面约169㎡

一梯一户,15米超大奢适面宽,尊享体验;
四开间朝南,4.5米开间客厅,通风采光,舒适留给家人;
南北双向阳台,特别是6米南向瞰景阳台,四季风景尽收眼底:
约22㎡酒店套房式主卧设计,独立衣帽间与盥洗室,空间阔绰,尽享私密。
招商·东城华府,据守光谷南中央生活区,进城心、退归心。地铁2号线南延线与有轨电车T1,双轨交汇围合便利交通路网,永旺商圈与首创奥特莱斯配套完善,退一步,400公顷藏龙岛湿地滋养,更有“一轴三重五进”式园林,铺就盛大归家仪仗。
居阔绰,纳非凡,招商·东城华府建面约86-95㎡稀贵两房与建面约129-169㎡置业终选,震撼入市。
项目地址:光谷·金融港·光谷二高旁
声明:本文由入驻焦点开放平台的作者撰写,除焦点官方账号外,观点仅代表作者本人,不代表焦点立场。


