奥园集团华中区域总部签约青山!奥园城市广场规划图首次官宣!P(2018)097号青山之心34街地块规划现身!
扫描到手机,新闻随时看
扫一扫,用手机看文章
更加方便分享给朋友
微信公众号中北路(作者姜华jianghua2046)招商青山获悉,奥园集团华中区域总部签约青山!奥园城市广场规划图首次官宣!P(2018)097号青山之心34街地块规划现身!
前情回顾:
10月30日武汉土拍:明日奥园地产或首进武汉!联合湖北工建青山拿地!
10月31日武汉土拍:湖北工建助奥园首进武汉!
奥园地产鄂州排名前列项目或落地梁子岛国际级旅游度假区
天下控股力邀奥园集团扎根蔡甸


奥园城市广场项目

奥园城市广场签约总金额为30亿元人民币,基于青山区34街坊地块进行开发,建设历史风情街区、国际商务办公区和高尚人文社区,打造奥园城市广场,助力青山区建设滨江生态商务区。

【 周边配套成熟,交通便利 】
奥园城市广场位于青山区,毗邻和平公园,紧靠冶金大道和工业路,周边交通便利,临近客运站、地铁站(4号线、5号线在建、20号线规划中)、火车站。拥有丰富的配套资源:
1.位于公园、长江周边,地铁交织,交通便利。
2.周边教育资源较多。

【四大策略 引爆城市能级】

【三片区设计】


片区一为国际商务办公区,多种空间模式,适用于企业办公和总部办公。

片区二为历史风情街区,特色的主题植入,适用于精品定制。




片区三为高尚人文住宅区,俯瞰江景,品质高端。


【六大节点设计】


奥园集团华中区域总部项目

奥园集团在青山区注册成立新的子公司,作为奥园负责华中区域的总部,积极参与城市更新、三旧改造等项目。总金额为1亿元人民币。
据微信公众号中北路了解,奥园地产创立于1996年,2007年于香港联交所主板上市(股票编号:3883),作为中国复合地产的创造者、中国主题地产创新理念的开拓者,构建了“地产、商业地产、国际投资、金控、文旅、健康生活、奥买家”七大集团,已布局80个城市,打造了近200个复合精品标杆项目,覆盖华南区域、华东区域、中西部核心区及环渤海区域四大经济核心区,并拓展至澳洲悉尼及加拿大温哥华、多伦多。
2017年5月,奥园地产13.1亿竞得湖北省荆州市商住项目,首进湖北!据微信公众号中北路了解,奥园湖北项目地块总建筑面积约35.4万平方米,楼面地价约3700元/平,位于荆州市沙北新区津乡大道及工农道,五分钟车程连接二连浩特—广州高速公路,十五分钟到达荆州高铁站。项目邻近湖北省重点中学—沙市中学及荆州市直属重点小学—荆州市实验小学的新址。
2018年10月,奥园地产、湖北工建合资武汉工建金奥房地产竞得P(2018)97号青山之心34街坊地块,是为今日奥园城市广场。
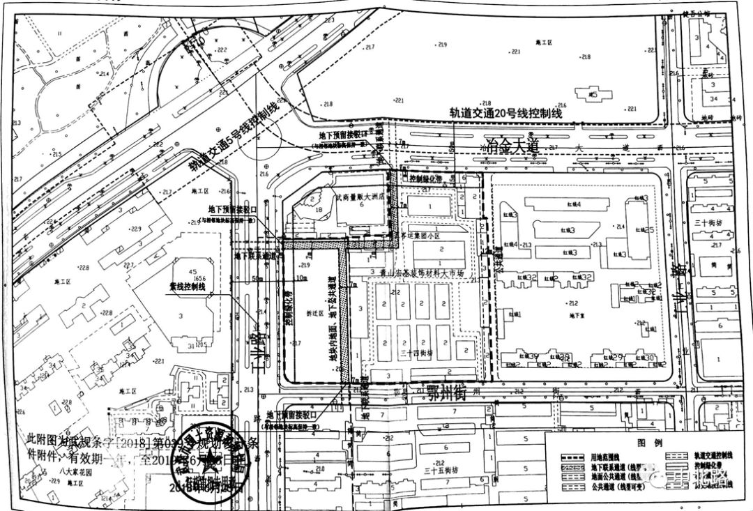
P(2018)097号地块规划设计条件
武汉青山拆迁:三旧改造会议研究青山之心——34街地块供地价格!
武规条字[2018]039号
一、规划用地情况
1、规划用地面积:34667平方米(其中防护绿地面积为1365平方米,按实测为准)。
2、规划用地性质:商业服务业设施用地、居住用地、防护绿地;
土地分类:商服用地、住宅用地、公园与绿地;
3、用地位置:冶金大道与工业路交汇处东南部(详见规划用地范围线)。
二、经济技术指标
1、地上计容建筑面积:控制在14.3万平方米以内(其中商业服务业设施建筑面积不大于10万平方米,居住建筑面积不大于4.3万平米);
2、容积率:按地上计容建筑面积与用地面积比值计算;
3、建筑密度:结合具体方案审定;
4、建筑高度:紫线控制区域内建筑高度不超过20米,商务塔楼建筑高度不低于200米,住宅建筑高度不超过120米;
5、绿地率:按照《武汉市城市绿化条例》执行。
经青山区人民政府批准:
1、引入1家或以上(含1家)取得“一行三会”颁发的金融许可证的全国性金融机构的区域总部或省级国有建筑企业集团总部;
2、竞买人须承诺该项目商务楼宇部分自持不低于2万方,且项目建成后5年不得对外出售;
3、项目以5A甲级标准建设写字楼,项目须在交地后6个约内动工开发,写字楼须在交地后36个月内通过工程竣工验收;
4、项目建成后,由青山区人民政府按照市场评估9000元/平方米的价格回购13068平方米共162套商品房住宅;按照市场评估价16500元/平方米的价格回购一楼商业用房面积6397平方米,按照市场评估价11500元/平方米价格回购二楼及以上商业用房面积7617平方米;用于安置还建本项目被征收户。竞得人需在交地后30个月内完成回购商品房交付。回购具体事宜,另行签订《回购协议》;
5、项目建成后,由青山区人民政府按照市场评估价22228元/平方米的价格回购一楼商业用房,按照市场评估价14448元/平方米的价格回购二楼商业用房共5000平方米(根据建筑方案确定一、二楼比例),按照市场评估价11385元/平方米的价格回购商务办公用房5000平方米,用于安置青山区“三旧”改造征收项目被征收户。回购具体事宜,另行签订《回购协议》;
6、土地竞得人在竞得该地块后,应当与武汉市青山区人民政府签订产业发展监管协议。

来源:招商青山、微信公众号中北路
声明:本文由入驻焦点开放平台的作者撰写,除焦点官方账号外,观点仅代表作者本人,不代表焦点立场。


