留在光谷,东城为你的置业圆梦
扫描到手机,新闻随时看
扫一扫,用手机看文章
更加方便分享给朋友

这是,我们眼里的光谷

这,是我们熟悉的光谷

这,也是我们的光谷
光谷,是一个神奇的存在,生于1988,武汉光谷已经三十而立。
30年光谷,发展日新月异,
版图扩容至224平方公里,每天诞生十几项专利,
年创收达1300亿元,占据武汉GDP半壁江山。
30年,完成从东湖高新到世界光谷的变身,
360、科大讯飞、ofo、联想移动通讯,
更多优秀企业落户光谷。
我们始终相信,
这里可以看到武汉的未来。
从涉世未深,到世故老成,
排名前列次走出校园,被自称没路费的“背包客”骗钱;
排名前列次恋爱,牵起姑娘的手相信歌词里的天长地久;
排名前列次拿到工资,给自己换手机、换电脑;
排名前列次失业、排名前列次升职、排名前列次跳槽……
这样的光谷,是你,也是我,也是TA
光谷,见证了我们的青春
即便快节奏、高压力的光谷模式,
偶尔让生活喘息,但于他们而言,
精英荟萃的光谷,更有魅力。
但是,多少个我们,如今却不得不面对一个现实
愈发繁荣的光谷,愈是容不下普通的身影。
多少次想有一处居所,可以在归家之后,成为一处温暖的港湾
但是,这个梦想那么近,又那么远
纵观光谷,片区房源供应量明显不足。
关山大道,一房难求,要么久久不见开盘,要么高攀不起
靠规划赢天下的光谷东片区,如今已然凋零,自联投驿园售罄后,仅有的绿地光谷中心城一根独苗,买到难度极大;个别楼盘更是分布在配套奇缺的光谷五路之外
而光谷南片区,随着康桥知园的清盘,
目前也没有楼盘在售。
仅有的招商·东城华府,
成了片区内少有选择。
目前,招商·东城华府
建面约86-169㎡全系高层,
震撼登场。为每一个奋斗在光谷的“我们”圆梦。

百年史 大招商
146年与时俱进 39年城市生长
百年招商局,始于公元1872年,管理资产总额央企排名前列;
1979年,招商蛇口成立,39载布局全国46城;
招商蛇口首次进军光谷,匠心启幕东城;
进城心、退归心
永旺商圈 双轨交汇,“一轴三重五进”园林
伴随光谷外拓,光谷南以醇熟配套登顶光谷中央生活区;
有轨电车T1已开通,地铁2号线南延线将于2019年1月开通;
光谷排名前列永旺梦乐城预计2018年8号开工、首创奥特莱斯已开业;
三级甲等医院-光谷中心医院,医疗配套环伺;
更有百米四季景观轴,三重主题运动园区,渐进性五重归家礼,铺就盛大归家仪式。
学府前、寸金地
12年全龄学府环绕
社区高配幼儿园;
光谷少有市级示范学校——光谷三小;
光谷新兴初级中学——光谷三中;
五十年底蕴高级中学——光谷二高;
剑桥大学国际考试委员会授权中学——光谷剑桥高中;
翰墨书香,学府比邻。
居阔绰、纳非凡
建面约86-95㎡稀贵两房&建面约129-169㎡置业终选
大面宽阳台与采光面,
大尺度餐客厅与卧室空间,
阔绰双卫与玄关尺度,
演绎阔绰非凡的居住体验。
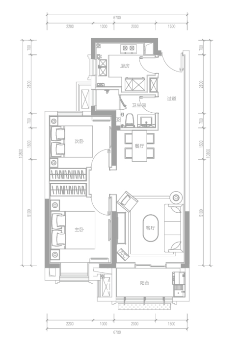
L1两室两厅一卫 建面约86㎡

ü 户型布局合理,功能齐全0浪费;
ü 餐客厅一体连接瞰景阳台;
ü 双卧飘窗设计,容纳更多风景。
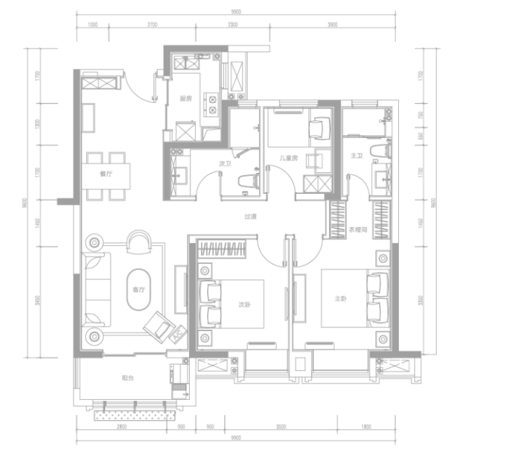
C户型 三室两厅两卫 建面约108㎡

ü 方正户型,餐客厨一体承接南向阳台,尺度开阔;
ü 南向飘窗双卧,舒适采光,风景无限;
ü 南向主卧私配独立盥洗间与衣帽间,独享私密时光;
ü 半开放式厨房,U型操作台,烹饪井然有序。
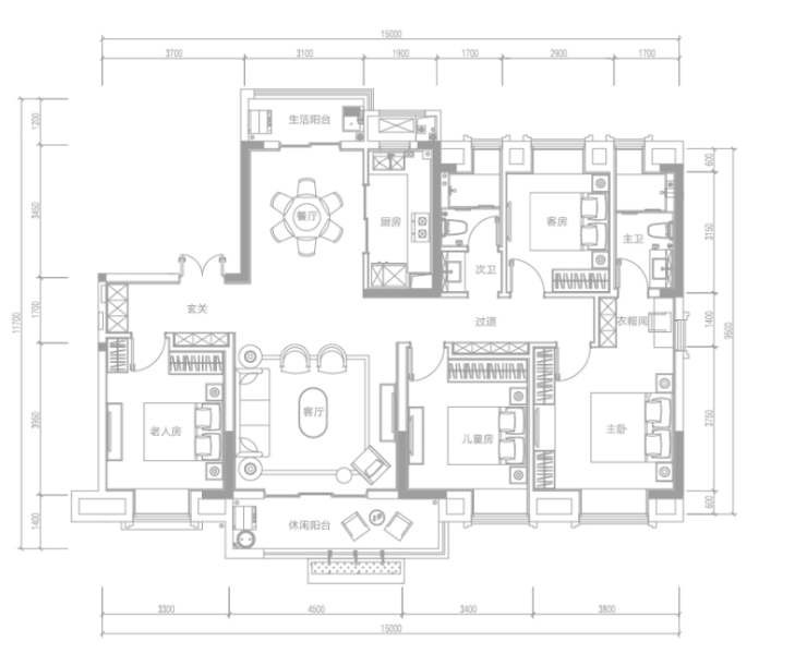
J户型 四室两厅两卫 建面约169㎡

ü 一梯一户,15m宽采光面,舒适度高;
ü 南北双向阳台连接4.5m宽餐客厅,奢阔尺度;
ü 南向超宽瞰景阳台,容纳四季风景;
ü 南向三卧,入户次卧区隔,二胎优选。
项目地址:光谷·金融港·光谷二高旁
声明:本文由入驻焦点开放平台的作者撰写,除焦点官方账号外,观点仅代表作者本人,不代表焦点立场。


