王家湾中央生活区75方二房上线!
扫描到手机,新闻随时看
扫一扫,用手机看文章
更加方便分享给朋友
“权力就像房地产,位置是所有的一切,你离中心越近,你的财产就越值钱。”——《纸牌屋》
李嘉诚的一句“地段、地段、还是地段”被房地产业界奉为金科玉律,向中心靠拢也一直是城市人群的奋斗目标。
为什么说核心地段才是买房的王道呢?
因为,城市不论如何发展,中央区域永远属于稀缺资源,始终代表着一个城市的核心文化与生活方式。城芯土地不仅不可再生,且汇聚了最优质的教育、医疗、文化、交通等配套资源,满足生活全部所想。离中心越近,资产就越值钱。但是,优质的地段、丰盛的配套不仅代表了房产的价值,也标定了房子的价格。

◇ 武汉—网络图
三环内住宅供地日渐稀缺
核心地段臻藏好房,入席趁早
如今的武汉楼市,总价200万基本已是三环内较低购房门槛了,而二环内的门槛基本上在300万左右,想要置业城市核心区,这个价格对刚需客户来说可谓是不太友好。现在,机会来了,王家湾中央生活区26#楼新品加推,最后一栋建面约75-165㎡压轴臻藏,首付低至40万起,给刚需上车中心城区创造了一个优质机会。

◇ 26#效果图
王家湾中央生活区位于王家湾芯,是汉阳二环的核心地段,不仅享受成熟城市资源,还有更强的发展潜力、更大的增值空间。武汉中心片区即三环主城区住宅供应已越来越少,从2020年的占比不足30%已经下降至2021年的约23%。土地越来越稀缺,地价也越来越高,未来将面临的不仅仅是中心区域房价攀升的问题,还有想买却买不到的问题,所以,王家湾中央生活区75㎡低总价品质两房,遇到就应该果断入手!

◇ 项目实景图
高功能空间、人性化布局
一席难得,难再得
王家湾中央生活区不仅地理位置优越,产品在市场上也备受热捧。此次加推的75㎡两房,在户型打造时,遵循客户的空间使用哲学,打造大面宽、短进深、布局方正、南北通透、功能性强的品质两居,兼顾了居住者对空间使用的需求,营造了更高级的舒适感!相比于主城区大多数小户型产品而言,王家湾中央生活区这样的户型不仅难得,入手门槛更友好!

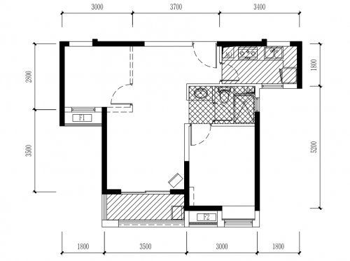
◇ 建面约75㎡户型图
建面约75㎡两房两厅一卫的布局,做到了主卧+客厅朝南的配置,还有一个南向约3.5米的阳台,无论是通透性还是采光性都远超于市场上同面积产品。此外,一体式客餐厅各功能分区明晰而空间相融,不仅视觉上大幅提升客厅开阔感,更增加了更多公共区域;双厅与景观阳台连成一线,让客厅更显朗阔通透,园林景观一览无余。

◇ 网络图
二环内,王家湾核心,这样一个醇熟片区内打造的高品质大盘,让中心城区有了更亲民的入场券,再加上看得到的优质配套和未来的稀缺价值,更值得臻藏!
值得注意的是,王家湾中央生活区建面约75㎡左右的小户型货量不多,想要以相对较低总价入主城芯的买房者,请抓紧上车!
王家湾中央生活区
最后一栋26#楼压轴加推
建面约75-165㎡双地铁毛坯新品
限量173席,错过不再!
声明:本文由入驻焦点开放平台的作者撰写,除焦点官方账号外,观点仅代表作者本人,不代表焦点立场。


