长江新城拆迁序幕拉开!又有一批土豪将诞生!快看有你没?
扫描到手机,新闻随时看
扫一扫,用手机看文章
更加方便分享给朋友
大家顾问
武汉楼市本土中介八连冠
中国房地产百强服务商
近日,武汉市城建委官网发布长江新城(黄陂南湖片区)拆除工程的报建工程公示!长江新城拆迁序幕正式拉开!

南湖村地理位置
南湖村位于黄陂区滠口街道,是长江新城挂牌以来,长江新城起步区首次开始拆迁的区域。此距2017年7月17日长江新城选址确定后约8个月。
4月13日,武汉国土规划局在武汉城市留言板回复市民热心提问:长江新城总体规划成果计划于6月底完成,8月底完成起步区控制性详细规划导则。待规划审批完成后,将依据规划有序启动长江新城相关建设。
此外,2018年武汉还有不少地方都等着拆迁,快看过来,没准你就是下一个拆二代。
2018武汉旧城改造地图武昌片
杨园铁四院片
征收范围
东至和平大道、南起四美塘路
西至四美塘西路及四美苑小区界
北至建设社区及铁四院中学

余家头片
征收范围
南至和平大道,西至铁机路
北至临江大道
主要集中在和平大道余家头公交车站路段

武昌红岭三期旧城改建
征收范围
1120户9.5万方建面
采用原地还建

武昌中心片
黄鹤楼片区
评估价:约14000-15500元/平方米
积玉桥四马路片
东临积玉桥,南邻一马路
西邻临江大道,北邻长江隧道
贷币补偿:约14000元/平方米
复兴路片
贷币补偿:约14000元/平方米

其 它 待 拆 迁 片 区


2018武汉旧城改造地图汉口片
汉正街民族街片(65、66号地块)
拟征收户数:1110户
拟征收建筑面积:97500㎡

汉正街和平里块(71号地块)
拟征收户数:1883户
拟征收建筑面积:172700㎡

杂技厅片(北湖社区)
拟征收户数:1600户
拟征收建筑面积:121563㎡

电影制片场片二期(万松街)
拟征收户数:830户
拟征收建筑面积:82400㎡

汉正天街64号地块(民族街)
拟征收户数:597户
拟征收建筑面积:29800㎡
汉正天街52、53、57号地块(民族街)
拟征收户数:2279户
拟征收建筑面积:193700㎡
汉正天街67号地块(民族街)
拟征收户数:294户
拟征收建筑面积:14700㎡

汉正街68、69号地块(民族街)
拟征收户数:394户
拟征收建筑面积:33500㎡

磨子桥片(民权街)
拟征收户数:5402户
拟征收建筑面积:350000㎡

复兴村片(长青街)
拟征收户数:3364户
拟征收建筑面积:293528㎡

北湖宿舍片(北湖街)
拟征收户数:2045户
拟征收建筑面积:179800㎡

王家巷社区片(民权街)
拟征收户数:200户
拟征收建筑面积:27950㎡

常腾街东片(常青街)
拟征收户数:111户
拟征收建筑面积:48500㎡

E-GO数码二期(花楼水塔街)
拟征收户数:203户
拟征收建筑面积:20700㎡

新华路四期(唐家墩街)
拟征收户数:347户
拟征收建筑面积:60100㎡

武汉电池厂片(新华街)
拟征收户数:675户
拟征收建筑面积:67700㎡

友谊路东片(民意街)
拟征收户数:3173户
拟征收建筑面积:271000㎡

菱角湖片(唐家墩街)
拟征收户数:82户
拟征收建筑面积:15397㎡

2018武汉旧城改造地图汉阳片
龟北二期
拟征收户数:3615户
拟征收建筑面积:300000㎡
征收范围:汉阳区江汉一桥与汉南路交汇处附近
西至江汉一桥,南临龟北路,北达汉南路
归元文化旅游发展区
拟征收户数:8947户
拆迁面积:共计91.87万方
征收范围:北至汉阳大道,南至国博大道
东至鹦鹉大道,西至归元寺路

建桥片
拟征收户数:4654户
拆迁面积:58万平方米
征收范围:东起滨江大道,南临拦江路
西至鹦鹉大道、北达汉阳大道

五墨里社区
拟征收户数:1300户
拆迁面积:11万平方米
征收范围:南至香榭琴台,北至汉阳大道
东至沌口铁路专线、西至马沧湖路

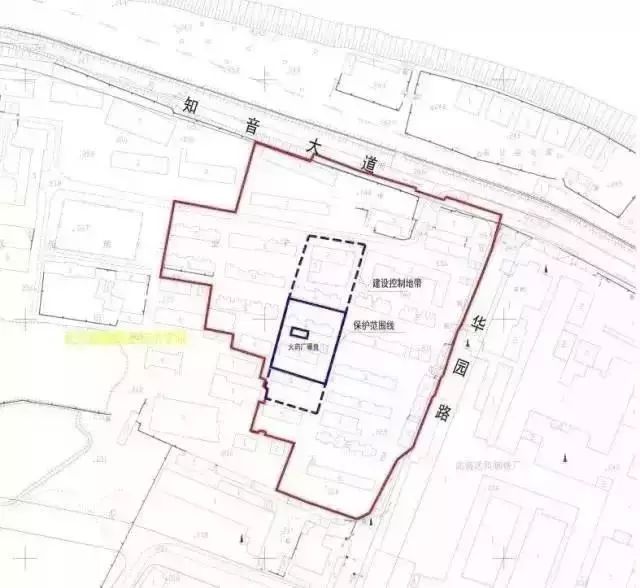
船院铁桥区
拟征收户数:797户
拆迁面积:5.7万平方米
征收范围:南至中央公园,北至知音大道
东至华园路,西至武汉船院

建港片
征收范围:北至规划新港大道,南至洲头路
西至国博大道,东至鹦鹉大道

其它待拆迁片区

文章来源:武汉中房网
声明:本文由入驻焦点开放平台的作者撰写,除焦点官方账号外,观点仅代表作者本人,不代表焦点立场。


